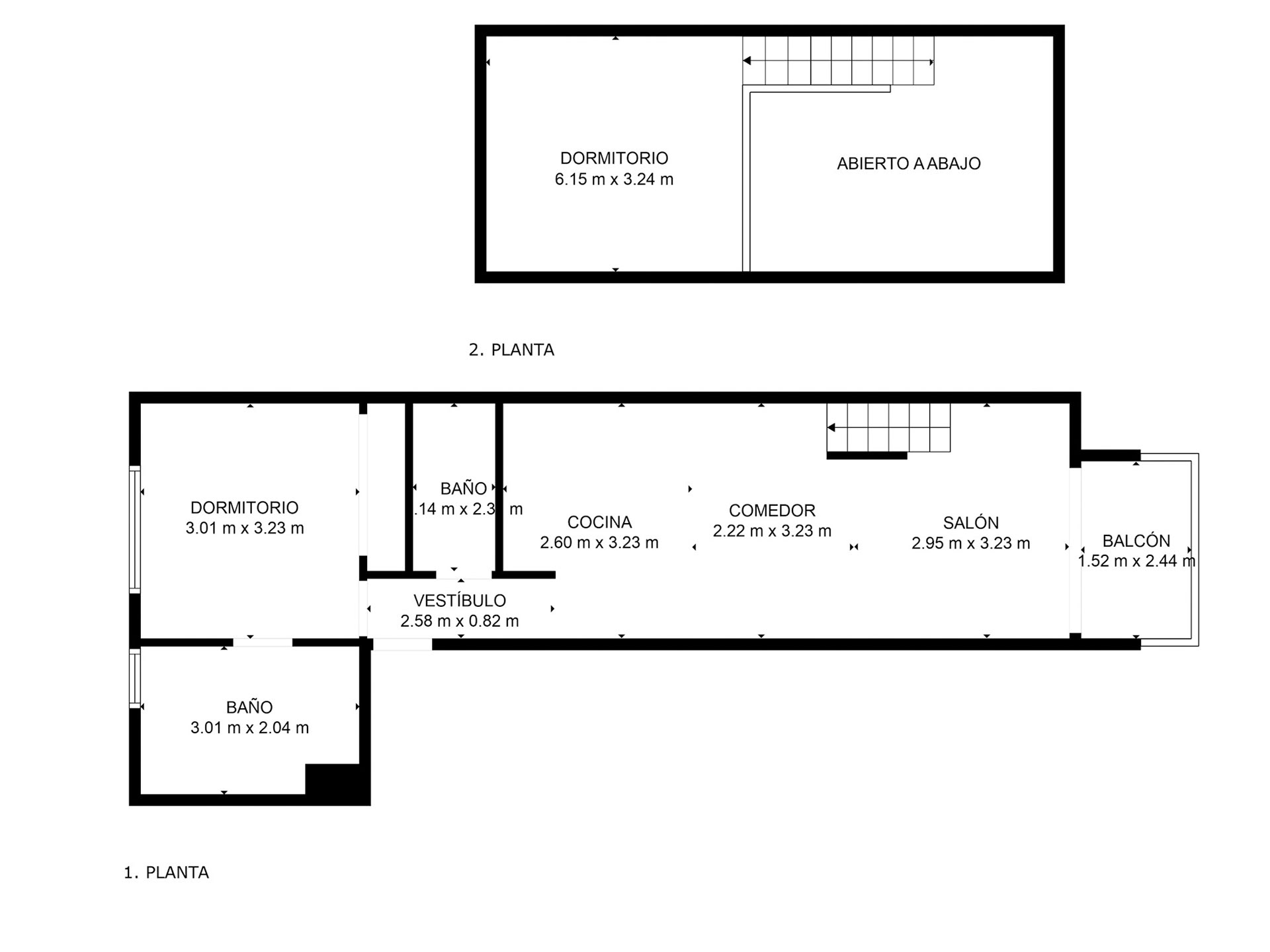
Acompañar las fotos de una propiedad en venta o alquiler con un plano aporta mucho valor y los posibles clientes responden positivamente. En Vistapro Studio, nos especializamos en servicios de planos 2D de alta calidad, proporcionando una visión clara y detallada de tus espacios.