Sesión de fotografía 
Sesión de fotografía aérea con drone
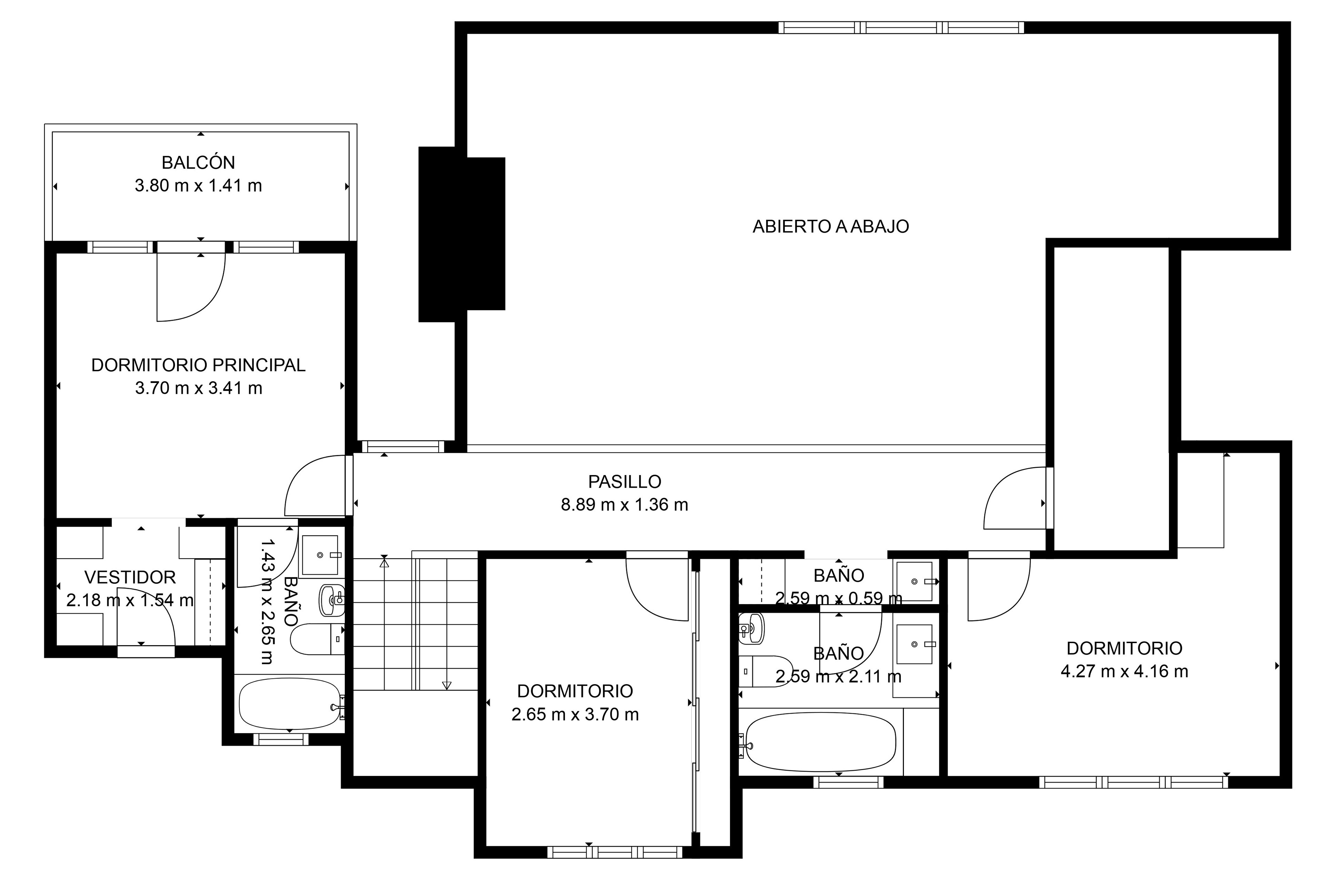
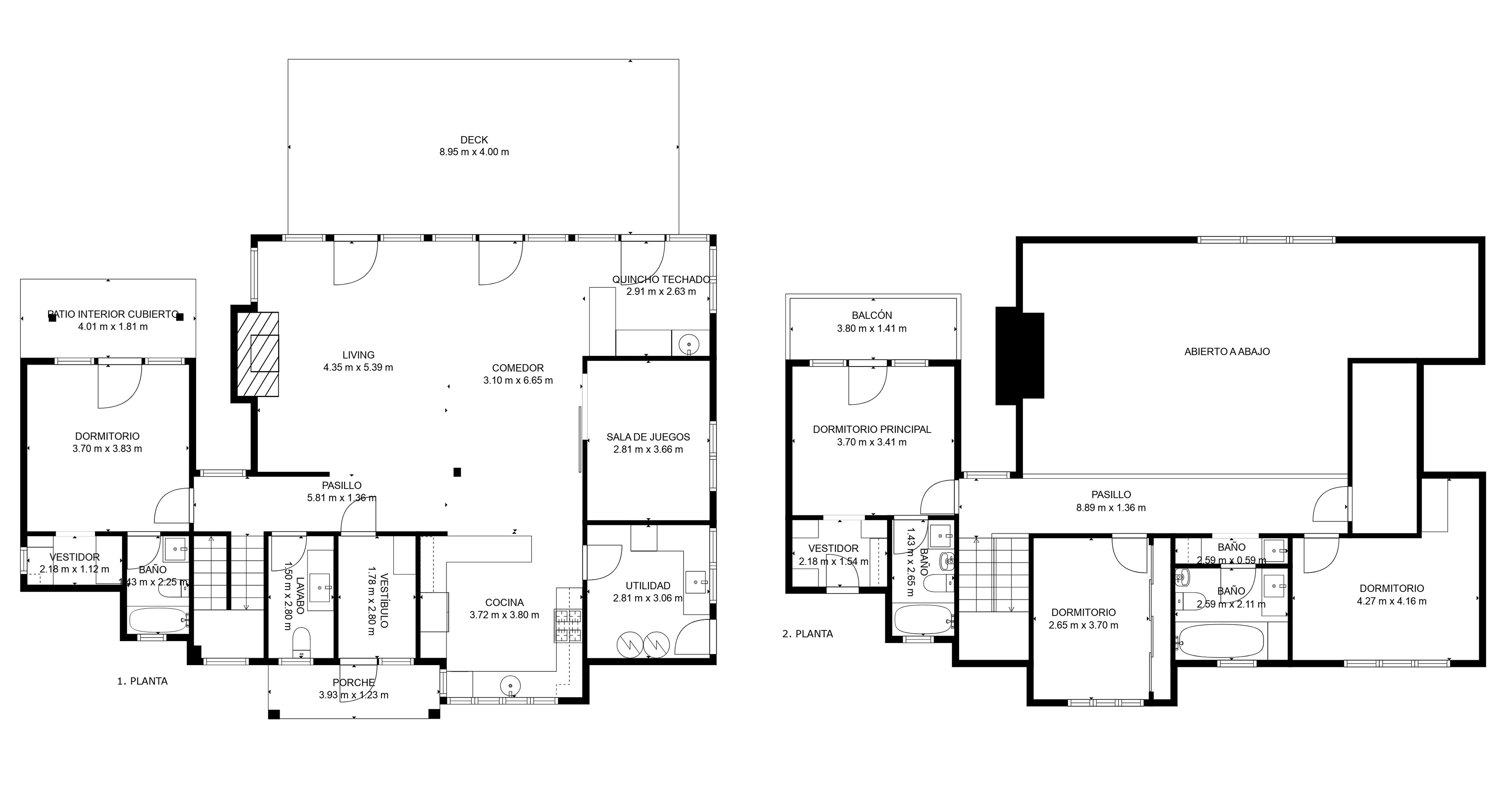
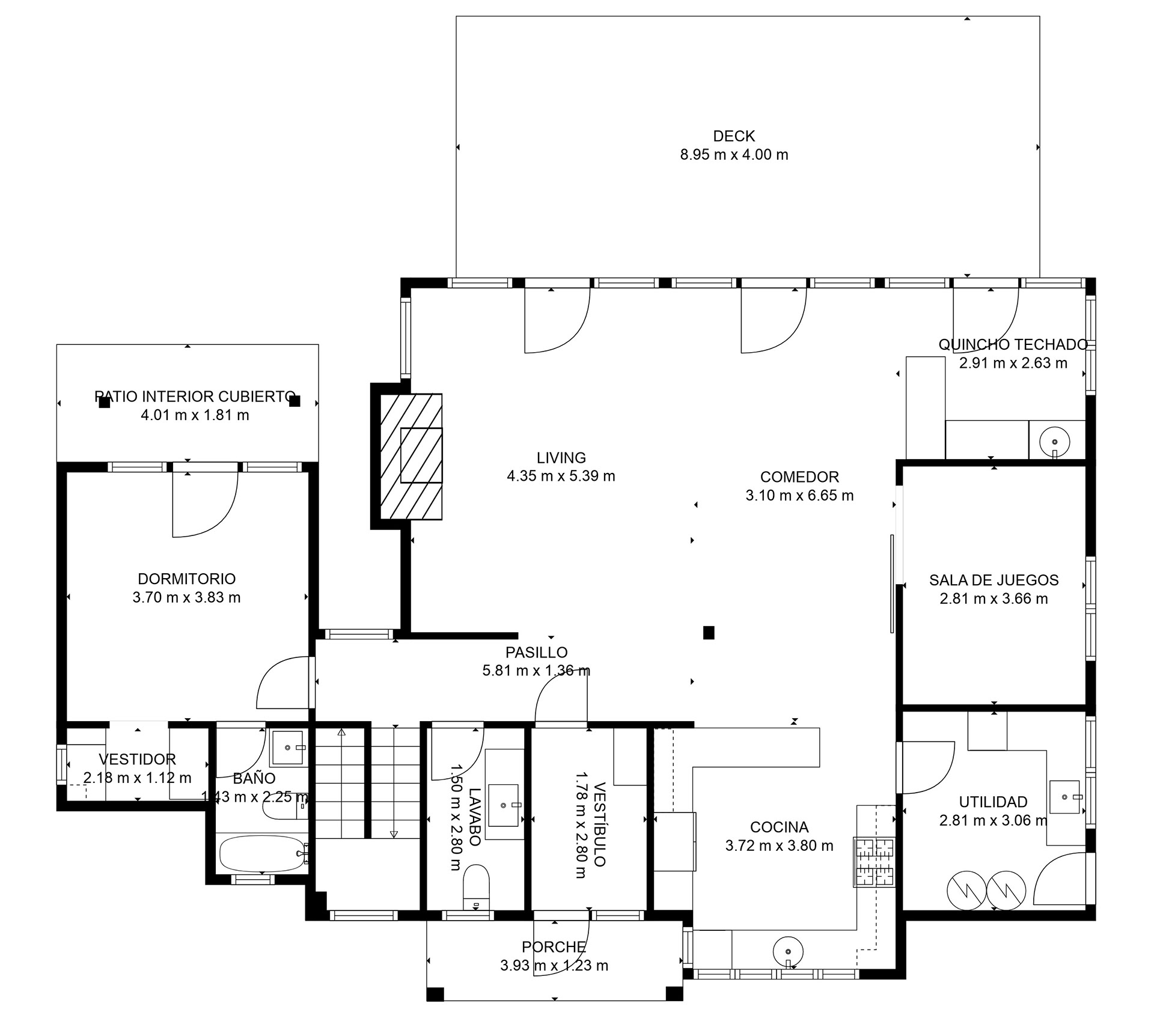
Planos 2D

Otras Sesiones en Bariloche

Back to Top